Tanner Place

Summary

Type
To Let
To Let
Size
To Let
0000
£
To Let
0000
Offers in the region of
£
700000
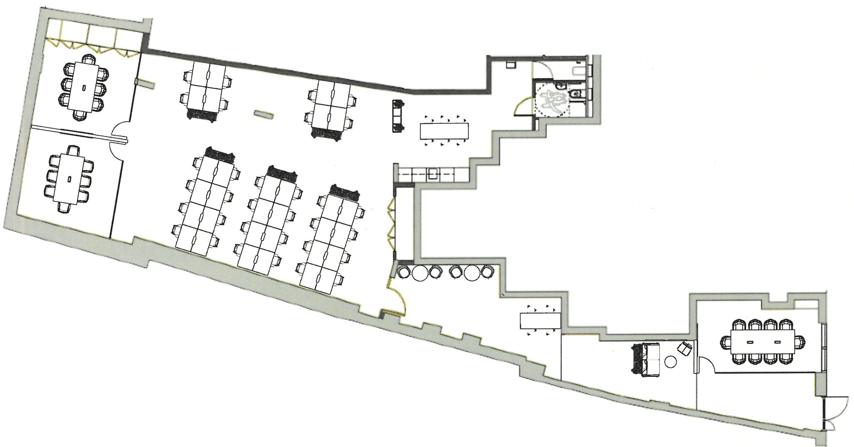
Floor Plan
Fourth Floor Office/Business Unit To Let

Description

Comprises a studio style self-contained office/business unit on the fourth/top floor of this converted period warehouse building. Arranged as a single open plan office with large meeting room plus kitchen point, store room, phone/call booth, shower and male and female w.c.s. Accessed via the ground floor building entrance, with stairs leading to the upper floors. The approximate net internal floor area is 1,200 sq ft (111.48 sqm). Has most recently been used as office but could be suitable for a number of alternative uses under the E Use Class.

Location

Located on the corner of Tanner Street and Pope Street, the premises are just off Tower Bridge Road and close to the popular and vibrant Bermondsey Street. The immediate local area provides high quality residential property with numerous office and retail buildings together with bars, cafes and restaurants. The redeveloped London Bridge mainline and underground stations with entrance/exit on St Thomas Street is within a short walk.

Specification

• Gas central heating • Mix of suspended linear uplighters and spotlighting • Concrete flooring • Surface power and data • Excellent natural light • Entryphone controlled access • Meeting room and call booth • Kitchen point • Male & female w.c.s • Shower

Terms

Fully flexible lease term with landlord’s standard lease document. Three month rent deposit required. RENT £42,000 per annum, exclusive of all outgoings.

Viewing

Please contact us on 020 7234 9639 if you wish to arrange a viewing appointment for this property, or require further information.

Energy Performance Certificate

Click here to view the Energy Efficiency Rating and Environmental Impact Rating for this property.

Disclaimer

Field and Sons Commercial endeavour to maintain accurate depictions of properties in Virtual Tours, Floor Plans and descriptions, however, these are intended only as a guide and purchasers must satisfy themselves by personal inspection.

Book a Viewing

Ready to see this property in person? Schedule a viewing at your convenience and let our experienced team show you everything this space has to offer. Simply fill out the form below with your preferred time and any specific requirements, and we'll be in touch within 24 hours to confirm your appointment.

About you
You Contact Details
Viewing Information
By submitting this form, you agree that we may contact you about your enquiry using the details you have provided.
Thank you! Your submission has been received!
Oops! Something went wrong while submitting the form.
Client Stories

With more than 30 years experience in commerical property, we've helped hundreds of clients find their ideal property. Discover what is is like to work with us: